Parduodama mūrinio namo dalis Domeikavoje Kauno r. sav.
- Dalinė apdaila !!! Padaryta naudojimosi tvarka.
- BENDRA INFORMACIJA:
- adresas: Pavasario g. 12, Domeikava, Kauno r.sav.
- sklypo plotas 5.2 aro + bendro naudojimo 1.23 aro.
- priklausančio sklypo dalis iš gatvės pusės.
- teritorija apsodinta ilgamečiais dekoratyviniais augalais, vaismedžiais, vaiskrūmiais. Aptverta kombinuota mūrine ir medžio lentų tvora.
- namo statybų pradžia 1978 m., renovuotas 2003 m.
- 2 aukštų pastatas.
- bendras plotas 209.04 m2
PATALPŲ EKSPLIKACIJA:
- pusrūsio patalpos 22.14 m2 ir garažas 21.61 m2.
- I aukštas 34.70 m2.
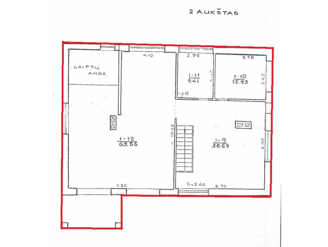
- II aukštas (4 kambariai): 69.56 m2, 9.41 m2, 12.93 m2, 38.69 m2.
- saugi kaimynystė. Asfaltuotas privažiavimas.
NAMO CHARAKTERISTIKA:
- pamatai betono, sienos plytų, pertvaros plytų, perdengimas monolitas.
- stogas skardinis, šlaitinis.
- langai plastikiniai.
- durys medinės.
- miesto vandentiekis, nuotekos, dujos, elektra.
- bendras plotas 209.04 m2, 5 gyvenamos patalpos, garažas.
Daugiau info tel.: +37068672271
www.nt-tau.lt
namo dalis Pavasario g. 12 Domeikavoje Kauno r.sav.
- Prekės kodas: namo dalis Pavasario g. 12 Domeikavoje Kauno r.sav.
-
117,000€













